当前位置:首页 >> 电动阀门
>> 电动三通阀 >> 电动三通阀 更新时间 2026-3-19 22:58:27
电动三通阀
| 电动三通阀 |
![]() |
产品名称: | 电动三通阀 | |||||
| 型号: | VB7300 | ||||||
| 口径: | DN25-300 | ||||||
| 压力: | 1.0-4.0MPa | ||||||
| 材质: | 铸铁,铸钢,不锈钢 | ||||||
|
|||||||
| 您正在浏览:【电动三通阀】 | |||||||
电动三通阀详细介绍
电动三通阀产品概述:
电动三通阀配以电子驱动控制装置后,能调节蒸汽或冷、热水的流量,广泛应用于中央空调、采暖、水处理、工业的流体控制。驱动器是由可逆同步马达驱动,并带磁性离合器。马达通过马达转子与离合器所产生的磁性作用,能在停顿的情况下产生稳定的扭矩。故此当马达没有电流通过时能稳定地停顿在任何一点,当阀门全开或全关时磁离合器分离,停止调节。驱动器的递增式或比例式控制器所发讯号能使马达顺时转动或逆时转动。电动三通阀产品实物图:

电动三通阀技术参数:
阀体材质:铸铁、球墨、铸钢、不锈钢
阀瓣、阀杆、阀座:黄铜、不锈钢
轴封:黄铜
填料:聚四氟乙烯
填料:聚四氟乙烯
密封件:三元乙丙橡胶
介质:蒸汽,热冷水,50%乙二醇温度:-20~180℃
公称压力:1.6Mpa
流量特性:等百分比或线性
可调比: 50:1
渗漏量(m3/h): KV值的0.01%
渗漏量(m3/h): KV值的0.03%
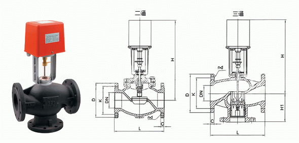
电动三通阀外形结构图:

电动三通阀连接尺寸:
电动三通阀外形结构图:

电动三通阀连接尺寸:
常规阀型号 |
口径 |
形 式 |
L |
H |
D |
b |
a |
f |
法兰 |
重量 |
行程 |
VB-7300 |
65 |
三通 |
290 |
158 |
185 |
20 |
145 |
18 |
4 |
25 |
45 |
VB-7300 |
80 |
310 |
195 |
200 |
20 |
160 |
18 |
8 |
26 |
45 |
|
VB-7300 |
100 |
350 |
216 |
220 |
20 |
180 |
18 |
8 |
32 |
45 |
|
VB-7300 |
125 |
400 |
237 |
250 |
22 |
210 |
18 |
8 |
58 |
45 |
|
VB-7300 |
150 |
480 |
282 |
285 |
22 |
240 |
22 |
8 |
76 |
45 |
|
VB-7300 |
200 |
533 |
289 |
340 |
30 |
295 |
22 |
12 |
97 |
45 |
电动三通阀产品特点:
1、执行器选用铸铝支架及塑料外壳,体积小、重量轻。
2、选用永磁同步电机,并带有磁滞离合机构,具有可靠的自我保护功能。
3、适合多种控制信号:增量(浮点)、电压(0~10V)、电流(4~20mA)。
4、具有0~10V或4~20mA反馈信号(选配)。
5、传动齿轮采用金属齿轮,大大提高了驱动器的使用寿命。
6、功耗低、输出力大、噪音小。
7、阀体有铸铜、铸铁、铸钢、不锈钢多种材质可供选择,以适合不同工作介质及温度的要求。
8、阀体有螺纹连接和法兰连接两种,安装方便,其构造符合IEC国际标准。
9、阀体结构形式有两通阀(单座)、两通平衡阀(平衡式)、三通合流和三通分流阀。
提示:本文中所有文字、数据、图片均只适用于参考,需要了解更详细的【电动三通阀】参数、选型、价格等请联系我们,我们将竭诚为您服务!



















