当前位置:首页 >> 过滤器
>> 管道过滤器 >> 变径Y型过滤器 更新时间 2026-3-19 23:15:03
管道过滤器
| 变径Y型过滤器 |
![]() |
产品名称: | 变径Y型过滤器 | |||||
| 型号: | SRYII4 | ||||||
| 口径: | DN15-600 | ||||||
| 压力: | PN1.0-6.4MPa | ||||||
| 材质: | 碳钢、不锈钢、双相钢等 | ||||||
|
|||||||
| 您正在浏览:【变径Y型过滤器】 | |||||||
变径Y型过滤器详细介绍
变径Y型过滤器产品概述:
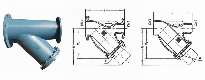
变径Y型过滤器与普通Y型过滤器功能相似,只是进出口管直径不一样,其进口公称直径比出口公称直径大一到两个档级,如:进口法兰尺寸为DN100,出口法兰则为DN65或DN80,该过滤器主要适用于安装在进出口管直径不相同的泵入口管道上过滤流体中所含的固体颗粒,从而保证泵设备的正常运行。
变径Y型过滤器产品优点:
变径Y型过滤器产品设计选型一般是根据Y型过滤器入口管道的公称直径和出口管道的公称直径的大小来确定的。
变径Y型过滤器技术规范:变径Y型过滤器产品优点:
变径Y型过滤器产品设计选型一般是根据Y型过滤器入口管道的公称直径和出口管道的公称直径的大小来确定的。

变径Y型过滤器零件材料:

变径Y型过滤器外形结构图:

变径Y型过滤器外形尺寸表:

变径Y型过滤器订货参数:
尊敬的客户!如果您需要订购我公司变径Y型过滤器产品,咨询时请提供公称通径、公称压力、壳体材质、滤网材质、法兰标准、法兰密封面形式等,本产品壳体材料可选用碳钢、铬钼钢、不锈钢、双相不锈钢及特种钢等。
提示:本文中所有文字、数据、图片均只适用于参考,需要了解更详细的【变径Y型过滤器】参数、选型、价格等请联系我们,我们将竭诚为您服务!



















