当前位置:首页 >> 电动阀门
>> 电动调节阀 >> 电动温控阀 更新时间 2026-1-14 15:56:47
电动调节阀
| 电动温控阀 |
![]() |
产品名称: | 电动温控阀 | |||||
| 型号: | VB7200/7300 | ||||||
| 口径: | DN25-250 | ||||||
| 压力: | 1.0-2.5MPa | ||||||
| 材质: | 铸铁,铸钢,不锈钢 | ||||||
|
|||||||
| 您正在浏览:【电动温控阀】 | |||||||
电动温控阀详细介绍
电动温控阀产品概述:
温度控制阀,简称温控阀是流量调节阀在温度控制领域的典型应用,其基本原理:通过控制换热器、空调机组或其他用热、冷设备、一次热(冷)媒入口流量,以达到控制设备出口温度。当负荷产生变化时,通过改变阀门开启度调节流量,以消除负荷波动造成的影响,使温度恢复至设定值。温控阀总体可分为:自力式温控阀和电动温控阀。电动温控阀特点及用途:
电动温控阀具有体积小,重量轻、连线简单、流量大、调节精度高等特点,广泛应用于电力、石油、化工、冶金、环保、轻工、天然气和科研设备等行业的工业过程自动控制系统中。
电动温控阀产品实物图:

电动温控阀是在暖通空调等温度控制领域的典型应用。控制器具有PI、PID调节功能,控制精确,多回路控制,功能多样,可实现流体流量、压力、压差、温度、湿度、焓值和空气质量的控制。执行器有电动机械式和电动液压式,带有手动和自动调节功能,调节灵敏,关断力大,流量特性可调(线性等百分比)。电动液压式执行器带断电自动复位保护功能,可接收 0-10V或4-20MA的信号并带有阀位反馈功能。阀体为流量调节阀,适用于循环管路冷冻水、低压热水、生活热水、高压热水、海水、热油、和蒸汽的调节线性好,可调比大,密封严密,耐高温,防汽蚀。
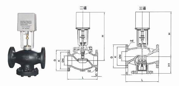
电动温控阀外形结构图:

电动温控阀连接尺寸:

电动温控阀连接尺寸:
常规阀型号 |
口径 |
形 式 |
L |
H |
D |
b |
a |
f |
法兰 |
重量 |
行程 |
VB-7200 |
65 |
二通 |
290 |
148 |
185 |
20 |
145 |
18 |
4 |
23 |
45 |
VB-7200 |
80 |
310 |
185 |
200 |
20 |
160 |
18 |
8 |
31 |
45 |
|
VB-7200 |
100 |
350 |
206 |
220 |
20 |
180 |
18 |
8 |
39 |
45 |
|
VB-7200 |
125 |
400 |
227 |
250 |
22 |
210 |
18 |
8 |
66.5 |
45 |
|
VB-7200 |
150 |
480 |
272 |
285 |
22 |
240 |
22 |
8 |
87 |
45 |
|
VB-7200 |
200 |
533 |
279 |
340 |
30 |
295 |
22 |
12 |
90 |
45 |
|
|
|||||||||||
VB-7300 |
65 |
三通 |
290 |
158 |
185 |
20 |
145 |
18 |
4 |
25 |
45 |
VB-7300 |
80 |
310 |
195 |
200 |
20 |
160 |
18 |
8 |
26 |
45 |
|
VB-7300 |
100 |
350 |
216 |
220 |
20 |
180 |
18 |
8 |
32 |
45 |
|
VB-7300 |
125 |
400 |
237 |
250 |
22 |
210 |
18 |
8 |
58 |
45 |
|
VB-7300 |
150 |
480 |
282 |
285 |
22 |
240 |
22 |
8 |
76 |
45 |
|
VB-7300 |
200 |
533 |
289 |
340 |
30 |
295 |
22 |
12 |
97 |
45 |
|
电动温控阀产品性能优点:
1、具有比例积分(PI)或比例积分、微分(PID)调节功能,控制稳定、精确。
2、针对不同的现场工况,可灵活调整控制参数,达到系统最优化。
3、可由控制器读取当前温度值及观察阀门工作状态。
4、可扩展功能,如远程设置、温度补偿、超温报警、用热计量及自动抄表、远传等。
5、大部分型号可在断电时进行手动操作。
提示:本文中所有文字、数据、图片均只适用于参考,需要了解更详细的【电动温控阀】参数、选型、价格等请联系我们,我们将竭诚为您服务!



















