当前位置:首页 >> 低温阀门
>> 低温节流阀 >> 低温节流阀 更新时间 2025-11-4 13:09:45
低温节流阀
| 低温节流阀 |
![]() |
产品名称: | 低温节流阀 | |||||
| 型号: | DL44W | ||||||
| 口径: | DN25-350 | ||||||
| 压力: | 1.6-32.0MPa | ||||||
| 材质: | 不锈钢 | ||||||
|
|||||||
| 您正在浏览:【低温节流阀】 | |||||||
低温节流阀详细介绍
低温节流阀产品概述:
低温节流阀适用于液化天然气装置,天然气LPG、LNG储罐,接受基地及卫星站,空分设备,石油化工尾气分离设备,液氧、液氮、液氩、二氧化碳低温贮槽及槽车、变压吸附制氧等装置上。输出的液态低温介质如乙烯、液氧、液氢、液化天然气、液化石油产品等低温节流阀材料重要性:
低温节流阀材料非常重要,材质不合格,会造成壳体及密封面的外漏或内漏;零部件的综合机械性能、强度和钢度满足不了使用要求甚至断裂。导致液化天然气介质泄漏引起爆炸。因此,在开发、设计、研制液化天然气阀门的过程中,材质是首要关键的问题,经过多年制造,我司已积累了丰富的经验,从设计、工艺到制造日趋成熟,并已开发形成了低温阀门的系列产品。
低温节流阀基本参数:
公称压力:1.6-32.0MPa
公称通径:DN25-350
适用介质:LO2、LN2、LAr等
适用温度:-196~+350℃
连接方式:法兰、螺纹、焊接
阀体、阀瓣:不锈钢、铜合金
阀杆材质:不锈钢
密封填料:PTFE
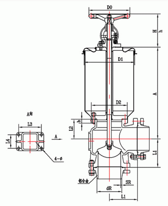
低温节流阀外形结构图:

产品型号 |
低温节流阀 |
重量 kg |
||||||||||||||
产品代号 |
通径 DN(mm) |
尺寸(mm) |
||||||||||||||
A |
dR |
sR |
L1 |
L2 |
L3 |
L4 |
Φ |
b |
D0 |
D1 |
D2 |
H |
h |
|||
DL44W |
100 |
800 |
108 |
4 |
140 |
100 |
120 |
70 |
15 |
20 |
320 |
255 |
195 |
260 |
310 |
98 |
DL44W |
125 |
800 |
133 |
4 |
165 |
115 |
135 |
80 |
15 |
22 |
360 |
350 |
210 |
263 |
313 |
110 |
DL44W |
150 |
800 |
158 |
4 |
180 |
135 |
150 |
90 |
17 |
22 |
360 |
350 |
255 |
263 |
323 |
135 |
DL44W |
200 |
800 |
208 |
4 |
215 |
180 |
185 |
120 |
17 |
22 |
450 |
446 |
295 |
335 |
405 |
170 |
DL44W |
250 |
800 |
260 |
5 |
260 |
210 |
220 |
150 |
22 |
25 |
450 |
446 |
390 |
335 |
435 |
253 |
DL44W |
300 |
1000 |
312 |
6 |
280 |
230 |
260 |
190 |
22 |
25 |
450 |
476 |
430 |
450 |
570 |
345 |
DL44W |
350 |
1000 |
362 |
6 |
310 |
260 |
280 |
200 |
22 |
25 |
450 |
526 |
480 |
450 |
590 |
463 |
提示:本文中所有文字、数据、图片均只适用于参考,需要了解更详细的【低温节流阀】参数、选型、价格等请联系我们,我们将竭诚为您服务!



















