当前位置:首页 >> 闸阀
>> 平板闸阀 >> 无导流孔平板闸阀 | 无导流孔平板闸阀 |
![]() |
产品名称: | 无导流孔平板闸阀 | |||||
| 型号: | Z43WF/Z543WF | ||||||
| 口径: | DN50-1000 | ||||||
| 压力: | 1.6-16.0MPa | ||||||
| 材质: | 铸钢、不锈钢等 | ||||||
|
|||||||
| 您正在浏览:【无导流孔平板闸阀】 | |||||||
无导流孔平板闸阀详细介绍
无导流孔平板闸阀应用范围:
无导流孔平板闸阀适用于天然气,石油,化工,环保,城市管道,燃气管线等输送管线,放空系统和汽储存装置上,用作启闭设备。适用于天然气开采和净化的长输管线。
无导流孔平板闸阀产品原理:
无导流孔平板闸阀是一种关闭件为平行闸板的滑动阀。其关闭件可以是单闸板或是其间带有撑开机构的双闸板。闸板向阀座的压紧力是由作用与浮动闸板或浮动阀座的介质压力来控制。如果是双闸板平板闸阀,则两闸板间的撑开机构可以补充这一压紧力。
无导流孔平板闸阀结构特点:
无导流孔平板闸阀采用标准:
设计规范 |
结构长度 |
连接法兰 |
试验与检验 |
压力-温度 |
产品标识 |
JB/T5298 |
JB/T5298 |
JB/79 |
JB/T5298 |
GB9131 |
GB/T12220 |
API6D |
API6D |
ANSI-16.5 |
API6D |
ANSI B16.34 |
MSS SP-25 |
无导流孔平板闸阀性能规范:
设计等级 |
常温下试验压力(MPa) |
适用温度℃ |
适用介质 |
|||||||
壳体 |
左密封 |
左密封 |
低压密封 |
“G”型 |
“D”型 |
普通型 |
“抗硫”型 |
“基本”型 |
||
公称压力PN(MPa) |
1.6 |
2.4 |
1.76 |
1.76 |
0.6 |
-29~50 |
-45~21 |
-2~121 |
H2S和CO2总含量大于500mg/m2的介质 |
石油天然气、水等 |
2.5 |
3.75 |
2.75 |
2.75 |
0.6 |
||||||
4.0 |
6.0 |
4.4 |
4.4 |
0.6 |
||||||
6.4 |
9.6 |
7.04 |
7.04 |
0.6 |
||||||
磅级Lb |
150 |
3.0 |
2.2 |
2.2 |
0.6 |
|||||
300 |
7.7 |
5.6 |
5.6 |
0.6 |
||||||
无导流孔平板闸阀零件材料:
阀门/阀盖 |
WCB |
WC6 |
A352-LCB |
A351-CF8M |
闸板 |
2Cr13+ENP |
20CrMoV+STL |
ANSO410+ENP |
ANSI316+ENP |
阀杆 |
2Cr13 |
2Cr13 |
A182-A6a |
A182-A316S |
阀座 |
25+PTFE |
20CrMoV+STL |
A105+PTFE |
A182-F316+PTFE |
填料 |
NBR/FPM |
柔性石墨/Flexible Graphite |
聚四氟乙烯/PTFE+FPM |
|
垫片 |
- |
|||
螺栓 |
35 |
35CrMo |
A193-B7M |
A193-B8 |
适用介质 |
水、油口、蒸汽 |
蒸汽、油品 |
丙烷、乙烯 |
硝酸类 |
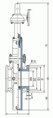
无导流孔平板闸阀外形结构图:

无导流孔平板闸阀连接尺寸:
1.6MPa |
DN |
L |
D |
D1 |
D2 |
Do |
f |
b |
H |
H1 |
n-Φd |
|
凸面法兰
RF(K)Z43WF-16C (K)Z543WF-16C (K)Z643WF-16C (K)Z943WF-16C |
50 |
178 |
160 |
125 |
100 |
250 |
3 |
16 |
584 |
80 |
4-Φ18 |
65 |
190 |
180 |
145 |
120 |
250 |
3 |
18 |
634 |
95 |
4-Φ18 |
|
80 |
203 |
195 |
160 |
135 |
250 |
3 |
20 |
688 |
100 |
8-Φ18 |
|
100 |
229 |
215 |
181 |
155 |
300 |
3 |
20 |
863 |
114 |
8-Φ18 |
|
125 |
254 |
245 |
210 |
185 |
350 |
3 |
22 |
940 |
132 |
8-Φ18 |
|
150 |
267 |
280 |
240 |
210 |
350 |
3 |
24 |
1030 |
150 |
8-Φ23 |
|
200 |
292 |
335 |
295 |
265 |
350 |
3 |
26 |
1277 |
168 |
12-Φ23 |
|
250 |
330 |
405 |
355 |
320 |
400 |
3 |
30 |
1491 |
203 |
12-Φ25 |
|
300 |
356 |
460 |
410 |
375 |
450 |
4 |
30 |
1701 |
237 |
12-Φ25 |
|
350 |
381 |
520 |
470 |
435 |
500 |
4 |
34 |
1875 |
265 |
16-Φ30 |
|
400 |
406 |
580 |
525 |
485 |
305 |
4 |
36 |
2180 |
300 |
16-Φ30 |
|
450 |
432 |
640 |
585 |
545 |
305 |
4 |
40 |
2440 |
325 |
20-Φ34 |
|
500 |
457 |
705 |
650 |
608 |
305 |
4 |
44 |
2860 |
360 |
20-Φ41 |
|
600 |
508 |
840 |
770 |
718 |
305 |
5 |
48 |
3450 |
425 |
20-Φ41 |
|
700 |
610 |
910 |
840 |
788 |
305 |
5 |
50 |
3960 |
460 |
24-Φ41 |
|
800 |
660 |
1020 |
950 |
898 |
305 |
5 |
52 |
4550 |
512 |
24-Φ41 |
|
900 |
711 |
1120 |
1050 |
998 |
250 |
5 |
54 |
5250 |
565 |
28-Φ48 |
|
1000 |
811 |
1250 |
1170 |
1110 |
250 |
5 |
56 |
5870 |
630 |
28-Φ18 |
|
2.5MPa |
50 |
178 |
160 |
125 |
100 |
250 |
3 |
20 |
584 |
80 |
4-Φ18 |
|
凸面法兰
RF(K)Z43WF-25 (K)Z543WF-25 (K)Z643WF-25 (K)Z943WF-25 |
65 |
190 |
180 |
145 |
120 |
300 |
3 |
22 |
634 |
95 |
8-Φ18 |
80 |
203 |
195 |
160 |
135 |
350 |
3 |
22, |
388 |
100 |
8-Φ18 |
|
100 |
229 |
230 |
190 |
160 |
350 |
3 |
24 |
863 |
114 |
8-Φ23 |
|
125 |
254 |
270 |
220 |
188, |
350 |
3 |
28 |
940 |
132 |
8-Φ25 |
|
150 |
267 |
300 |
250 |
218 |
400 |
3 |
30 |
1030 |
150 |
8-Φ25 |
|
200 |
292 |
360 |
310 |
278 |
450 |
3 |
34 |
1277 |
168 |
12-Φ25 |
|
250 |
330 |
425 |
370 |
332 |
500 |
3 |
36 |
1491 |
203 |
12-Φ30 |
|
300 |
356 |
485 |
430 |
390 |
305 |
4 |
40 |
1701 |
237 |
16-Φ30 |
|
350 |
381 |
550 |
490 |
448 |
305 |
4 |
44 |
1875 |
265 |
16-Φ34 |
|
400 |
406 |
610 |
550 |
505 |
305 |
4 |
48 |
2180 |
300 |
16-Φ34 |
|
450 |
432 |
660 |
600 |
555 |
305 |
4 |
50 |
2440 |
325 |
20-Φ34 |
|
500 |
457 |
730 |
660 |
610 |
305 |
4 |
52 |
2860 |
360 |
20-Φ41 |
|
600 |
508 |
840 |
770 |
718 |
305 |
5 |
56 |
3450 |
425 |
20-Φ41 |
|
700 |
610 |
955 |
875 |
815 |
305 |
5 |
60 |
3960 |
460 |
24-Φ48 |
|
800 |
660 |
1070 |
990 |
930 |
305 |
5 |
64 |
4550 |
512 |
24-Φ48 |
|
900 |
711 |
1180 |
1090 |
1025 |
- |
5 |
66 |
5250 |
595 |
28-Φ54 |
|
1000 |
811 |
1305 |
1210 |
1140 |
- |
5 |
68 |
5870 |
660 |
28-Φ48 |



















